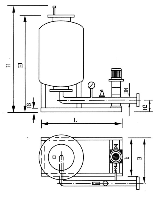
定壓補水裝置產品原理結構圖
時間:2013/5/27 來源:浙江揚子江泵業有限公司

囊式膨脹定壓罐主要罐體、供水膠囊、進(出)水口、充氣裝置、壓力表、排氣閥等組成。供水膠囊采用純天然無毒橡膠制成,具有良好的韌性和伸縮性能,它與進水口相通,并且形成一個密閉的腔室將水與外部鋼罐內壁完全隔絕,膠囊和鋼罐內壁之間充有氮氣,具有很強的化學惰性及比熱容大等優點。囊式定壓罐主要利用氣體的可壓縮性,對系統由于溫度變化引起的水體積增大或減少進行吸納或補充作用。當系統溫度增高時,水體積增大,這時系統壓力大于罐內氣體壓力,部分水會被壓入罐內的膠囊里,直到罐內氣體的壓力與系統壓力達到平衡。當系統溫度降低時,水體積變小,這時罐內氣體壓力大于系統壓力,部分水會被壓回系統,起到對系統補充水量的作用。囊式定壓罐通常與外部的控制箱,補水泵及電接點壓力表等,連接形成機組,根據系統的低需要壓力及高運行工作壓力設定工作狀態,性能特點和應用范圍 
性能特點:
1、一次充氣可保持長久使用;
2、罐體為密閉裝置,氣水不接觸,保證水質不受外界污染;
3、占地面積少、安裝快、投資省、操作維修方便;
4、可取代生活、消防及采暖、空調用的高位水箱及水塔,有利于建筑美觀和結構 抗震,降低建筑的造價;
5、能自動消除管網中的水錘及噪音;
6、在熱水采暖及空調系統中起膨脹水箱和自動補水作用;
應用范圍:
1、工業與民用建筑的生產、生活及消防給水系統;
2、熱水供應系統、熱水采暖系統中作落地膨脹水箱;
3、作為高層建筑給水系統中水錘噪音消除設備;
4、農村自來水的理想設備、建筑施工、流動作業中臨時供水設備;
感謝您訪問我們揚子江泵業的網站www.110telecom.com,如有任何水泵疑問我們一定會盡心盡力為您提供優質的服務。
- 下一篇:不銹鋼防爆直聯旋渦泵
- 上一篇:液下排污泵一用一備液位帶浮球控制柜工作原理






