產品中心 PRODUCTS LIST
污水泵系列
您當前位置:網站首頁 >> 產品中心 >> 污水泵系列 >> QJB潛水攪拌機
QJB潛水攪拌機
QJB型潛水攪拌機作為水處理工藝中的關鍵設備之一,在水處理工藝流程中,可實現生化過程中固液二相流和固液氣三相流的均質,流動的工藝要求。它由潛水機葉輪和安裝系統等組成。潛水攪拌機為直連式結構。他于傳統的大功率電機通過減速機降速相比,具有結構緊湊,能耗低,便于維護和保養等有點。
目錄
QJB潛水攪拌機概述
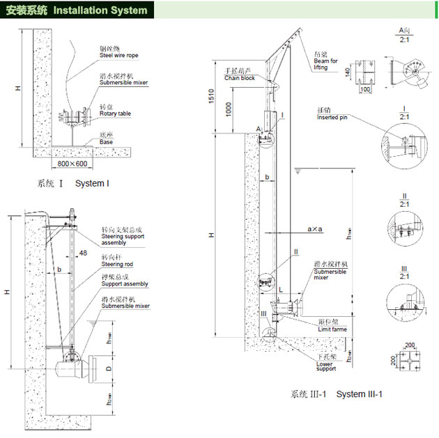
QJB型潛水攪拌機作為水處理工藝中的關鍵設備之一,在水處理工藝流程中,可實現生化過程中固液二相流和固液氣三相流的均質,流動的工藝要求。它由潛水機葉輪和安裝系統等組成。潛水攪拌機為直連式結構。他于傳統的大功率電機通過減速機降速相比,具有結構緊湊,能耗低,便于維護和保養等有點。葉輪經過精鑄或沖壓成型,精度高,推力打,流線性造型簡潔美觀。該系列產品適用于需要固液攪拌,混合的場所。結構簡圖如下:
相關文章











