標準文獻 STANDARD DOCUMENT
行業新聞
您當前位置:網站首頁 >> 標準文獻 >> 詳情內容
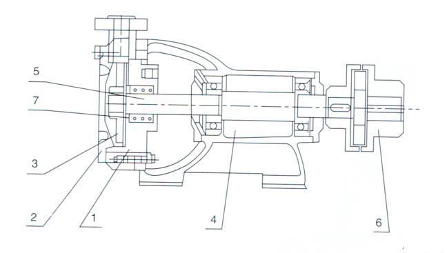
W型單級懸臂式旋渦泵(結構圖)
時間:2011/4/13 來源:浙江揚子江泵業有限公司
W型單級懸臂式旋渦泵(結構圖):

結構說明
W型分聯式旋渦泵的主要零件(見結構圖)有(1)泵(2)泵蓋(3)葉輪(4)托架結合體(5)泵軸(6)爪型彈性聯軸器(7)特別組合體機械密封。該型泵與電機合裝在同一底座上.進、出口方向為斜鑰上.經接彎管可変為垂直向上。葉輪在軸上能夠自由地作軸向移動,泵在工作中葉輪能自行調節好與泵體和泵蓋之間的間隙。
- 下一篇:SZ型水環式真空泵的用途及規格
- 上一篇:W型單級懸臂式旋渦泵安裝尺寸






